Izsoļu arhīvs

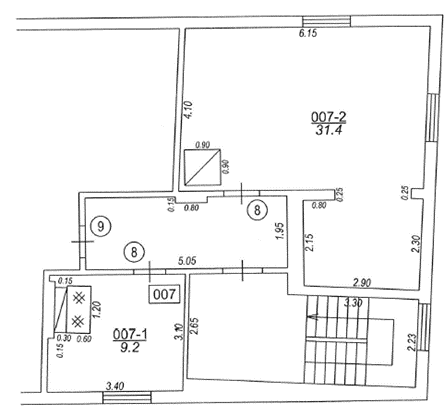
Pārdod nekustamo īpašumu – Ēdoles ielā 22-8, Kuldīgā, 40,6 m2

Kuldīgas novada pašvaldība saskaņā ar Publiskas personas mantas atsavināšanas likumu pārdod atkārtotā elektroniskā izsolē ar augšupejošu soli Kuldīgas novada pašvaldībai piederošo nekustamo īpašumu Ēdoles iela 22-8, Kuldīgā, Kuldīgas nov. (kadastra Nr. 62019003436). Nekustamā īpašuma atsavināšanas nosacījumi pieejami izsoles noteikumos.

Nosacītā cena: 7000 EUR, drošības nauda: 700 EUR, izsoles solis 100 EUR.

Izsole sākas elektronisko izsoļu vietnē https://izsoles.ta.gov.lv 2024. gada 13. decembrī plkst. 13:00 un noslēdzas 2025. gada 13. janvārī plkst. 13:00.

Personai, kura vēlas piedalīties izsolē, līdz 2025. gada 2. janvārim plkst. 23:59, jāiemaksā Kuldīgas novada pašvaldības pamatbudžeta kontā: Kuldīgas novada pašvaldība, reģistrācijas Nr. 90000035590, SEB banka, kods UNLALV2X, konts LV26UNLA0011001130401, norādot: “Ēdoles iela 22-8, izsole” nodrošinājums 10% apmēra no izsolāmā objekta nosacītās cenas un, izmantojot elektronisko izsoļu vietni, jānosūta lūgums izsoles rīkotājam autorizēt to dalībai izsolē.

Samaksa par pirkumu – pēc izsoles organizētāja noteiktā paziņojuma saņemšanas dienas par pirkuma maksu ieskaitot 2 (divu) nedēļu laikā visu nosolīto cenu.

Paziņojums par izsoli ir jāpublicē elektronisko izsoļu vietnē  https://izsoles.ta.gov.lv, Latvijas Republikas oficiālajā izdevumā “Latvijas Vēstnesis”, Kuldīgas novada pašvaldības informatīvajā izdevumā “Kuldīgas Novada Vēstis”, pašvaldības interneta mājaslapā www.kuldigasnovads.lv, izliekams labi redzamā vietā pie attiecīgā nekustamā īpašuma.

Izsoles noteikumus un informāciju par nekustamo īpašumu var saņemt Kuldīgas novada pašvaldības informācijas centrā Baznīcas ielā 1, Kuldīgā, Kuldīgas novadā, pa tālruni 63350143 vai pa e-pastu dome@kuldiga.lv.

Edoles_iela_22_8_izsoles_noteikumi_elektroniski (1)

Kuldīga Municipality according to Law on Expropriation of Public Property Sells in a repeated electronic auction with an ascending step Real estate property: address: Ēdoles street 22-8, Kuldīga, Kuldīga Municipality (cadastral number 62019003436) owned by Kuldīga Municipality. Conditions of expropriation of the immovable property can be found in the auction conditions.

Start price: 7000 EUR, security amount: 700 EUR, auction step: 100 EUR. The auction takes place on the electronic auction website https://izsoles.ta.gov.lv. The starting date of the auction is 2024 at December 13 13.00 and the closing date of the auction – on January 13 2025 at 13.00.

Persons wishing to participate in the auction, shall till January 2 2025, 23.59 transfer the security in the amount of 10% of the real estate appraisal of 700 EUR to Kuldīga Municipality core budged account: Kuldīga Municipality, Reg. No. 90000035590, bank: AS “SEB banka”, SWIFT (BIC) code: UNLALV2X, account number: LV26UNLA0011001130401, indicating “Edoles iela 22-8, izsole”, and by using the electronic auction website must send a request to auctioneer to authorize their participation in the auction.

Payment conditions for the auctioned object: after the day of receipt of the notice specified by the auction organizer about the purchase fee, including: within 1 (one) month.

Notification of the auction shall be published on the electronic auction website https://izsoles.ta.gov.lv, in the official publication of the Republic of Latvia “Latvijas Vēstnesis”, in the informative publication of Kuldīga Municipality “Kuldīgas Novada Vēstis”, on the website of Kuldīga Municipality https://kuldigasnovads.lv/, as well as be displayed in a clearly visible place at the relevant immovable property.

Auction conditions and information about the property can be received at the information centre of Kuldīga Municipality at Baznīcas street 1, Kuldīga, Kuldīga Municipality, via phone +371 63350143 or via email dome@kuldiga.lv.

 

 

Komentāri ir slēgti.